Nuova Realizzazione "Residenza Del Talino "


Monza | 640.000,00 | Mq 151 | 4 | 3 | 3


Descrizione

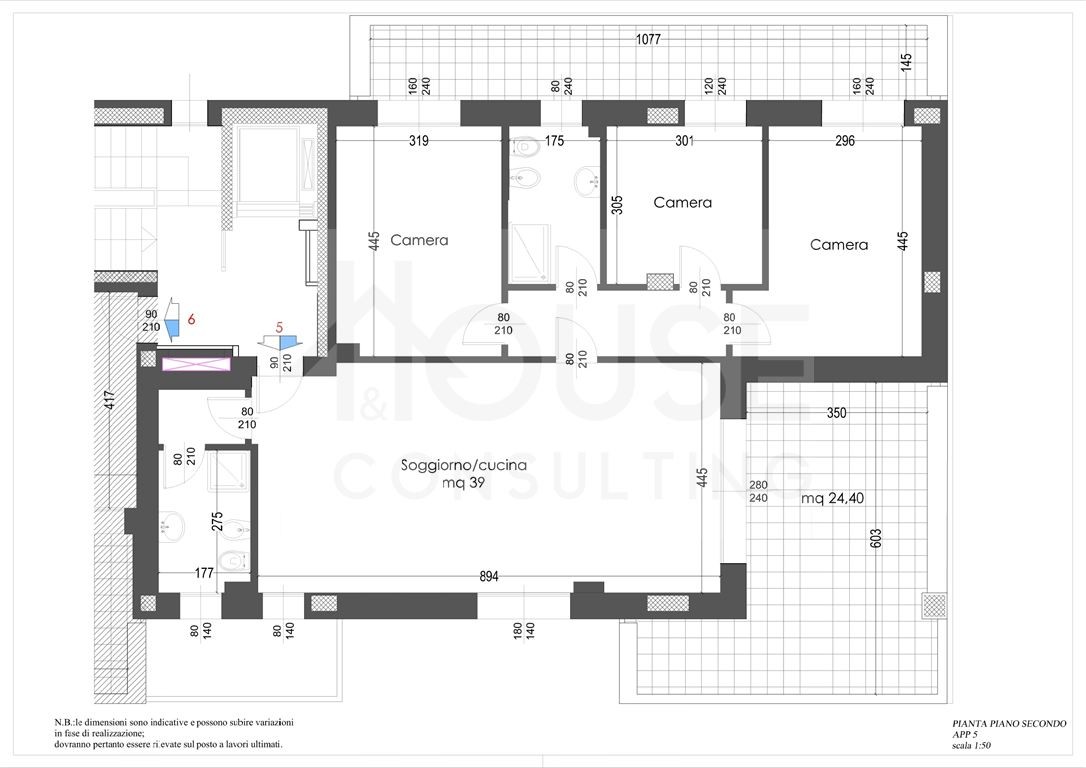
Rif. Appartamento 5

Appartamento al secondo piano di quattro locali con doppi servizi 151 mq, terrazzo coperto di 28 mq e balcone da 18 mq.

In elegante mini palazzina di 9 unità abitative, proponiamo appartamento con tripla esposizione, composto da:

- Ingresso
- Ampio salone/cucina da 46 mq con grande vetrata scorrevole e accesso diretto al terrazzo coperto
- Tripli servizi finestrati
- Tre comode camere servite da un’ampia balconata

Ampia disponibilità di personalizzazione degli interni grazie a un capitolato ricco e curato nei dettagli, con finiture di pregio come ceramiche di grandi formati ( fino a 90x90 ) o parquet in tutti gli ambienti.

Ogni residenza è progettata per offrire massimo confort abitativo e dotazioni tecnologiche innovative, quali:

- Riscaldamento a pavimento con termostato a gestione autonoma, predisposizione di impianto di ventilazione meccanica controllata.
- Predisposizione condizionamento e deumidificazione.
- Pannelli fotovoltaici per la produzione di energia elettrica.
- Tutte gli appartamenti sono dotati di serramenti certificati per il risparmio energetico con grandi vetrate scorrevoli, tapparelle elettriche e zanzariere.

Completa la soluzione la cantina e la possibilità di box singolo o doppio dotati di serranda automatica



Per ulteriori informazioni House&Consulting Arcore 0396012742 www.hcarcore.it

Le immagini sono fornite al solo scopo illustrativo e non costituiscono elemento contrattuale.

  • Riferimento 2538
  • Contratto Vendita
  • Tipologia Appartamento
  • Prezzo 640.000,00
  • Mq 151
  • Locali 4
  • Camere 3
  • Bagni 3
  • Comune Monza
  • Zona
  • Efficienza energetica certificazione energetica Classe A+ Ipe 15 KWh/m²a

  • Via Lorenzo Perosi 11 Monza

    Richiedi informazioni

    House & Consulting

    039/60.12.742

    Ai sensi e per gli effetti degli articoli 13 e 6 del Regolamento UE 2016/679, dichiaro di aver preso visione dell’informativa di House & Consulting by Multiservice Srl per il trattamento dei dati personali.

    Nuova Realizzazione "Residenza Del Talino "

    Monza | 640.000,00 | Mq 151 | 4 | 3 | 3 | RIF 2538

    Via Lorenzo Perosi 11 - Monza -

    Rif. Appartamento 5

    Appartamento al secondo piano di quattro locali con doppi servizi 151 mq, terrazzo coperto di 28 mq e balcone da 18 mq.

    In elegante mini palazzina di 9 unità abitative, proponiamo appartamento con tripla esposizione, composto da:

    - Ingresso
    - Ampio salone/cucina da 46 mq con grande vetrata scorrevole e accesso diretto al terrazzo coperto
    - Tripli servizi finestrati
    - Tre comode camere servite da un’ampia balconata

    Ampia disponibilità di personalizzazione degli interni grazie a un capitolato ricco e curato nei dettagli, con finiture di pregio come ceramiche di grandi formati ( fino a 90x90 ) o parquet in tutti gli ambienti.

    Ogni residenza è progettata per offrire massimo confort abitativo e dotazioni tecnologiche innovative, quali:

    - Riscaldamento a pavimento con termostato a gestione autonoma, predisposizione di impianto di ventilazione meccanica controllata.
    - Predisposizione condizionamento e deumidificazione.
    - Pannelli fotovoltaici per la produzione di energia elettrica.
    - Tutte gli appartamenti sono dotati di serramenti certificati per il risparmio energetico con grandi vetrate scorrevoli, tapparelle elettriche e zanzariere.

    Completa la soluzione la cantina e la possibilità di box singolo o doppio dotati di serranda automatica



    Per ulteriori informazioni House&Consulting Arcore 0396012742 www.hcarcore.it

    Le immagini sono fornite al solo scopo illustrativo e non costituiscono elemento contrattuale.

    Efficienza energetica Classe A+ Ipe 15 KWh/m²a


    Via Umberto I, 67 20862 - Arcore- Tel. 039 60 12 742